Cedar Bluff
Print
Want to See both sketches on one page ?
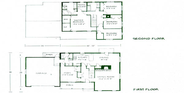
4 BR, 2.5 Baths, 2 Story, 2662 sq. ft. Garage
Model Floor Plan Sketch
Copyright©
Appalachian Log Homes of Asheville
"Independently Owned Dealership for Appalachian Log Homes"
Contact Us -- You won't be disappointed!
Phone: 828-628-3085 Fax, 828-628-3087
Email:
info@alhofasheville.com