Yukon Trail II
Print
Want to See both sketches on one page ?
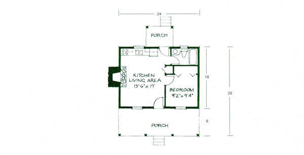
1 BR, 1 Baths, 1 Stories, 432 sq. ft. Great Room
Model Floor Plan Sketch
Copyright©
Appalachian Log Homes of Asheville
"Independently Owned Dealership for Appalachian Log Homes"
Contact Us -- You won't be disappointed!
Phone: 828-628-3085 Fax, 828-628-3087
Email:
info@alhofasheville.com