Cedar Ridge

Print
Want to See both sketches on one page ?

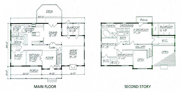
4 BR, 3 Baths, 2 Story, 2502 sq. ft.


Model Floor Plan Sketch




Copyright© Appalachian Log Homes of Asheville
 "Independently Owned Dealership for Appalachian Log Homes"
Contact Us -- You won't be disappointed!
Phone: 828-628-3085   Fax, 828-628-3087
Email: info@alhofasheville.com
image image image image image image image image image image

image